

160 Rue King Montreal, QC H3C 2PC
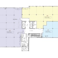
2ème, 3ème et 4ème étage:
Superficie locative: 16,000 pi2 (étage complet)
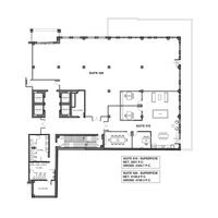
5ème étage:
Superficie locative
Suite 510: 2324 pi2 | Suite 520: 4749 pi2
6ème, 7ème et 8ème étage:
Superficie locative: 14,000 pi2 (étage complet)
Loyer net: $25 pi² par année | Loyer addiitonnel: $15 pi² par année
Électricité: à la charge du locataire
- Hauteur sous plafond: 12 pi 2 po
- Charge admissible: 100 lb/pi² (charge vive)
- Escaliers internes possibles: panneaux prédécoupés à chaque étage
- Espaces extérieurs privés: loggias/balcons pour les suites de bureaux
- CVAC: entièrement personnalisable avec contrôle individuel par locataire
- Fenêtres ouvrantes partout
- Électricité: capacité doublée par rapport aux immeubles typiques du centre-ville
- Toit-terrasse: terrasses + terrain de basketball et pickleball
- Mise en forme: gym haut de gamme avec vestiaires et douches
- Espace locataires: lounge au penthouse + salle Zen dédiée
- Bornes de recharge: à chaque niveau de stationnement
- Commodités cyclistes au garage: douches + supports à vélos sécurisés
- Ascenseurs: 4 grands ascenseurs rapides
- Stationnement: garage sur 3 niveaux avec plafonds de 10 pi
- Atrium : atrium de 40 pi au rez-de-chaussée avec lumière naturelle
160 King Street, Montreal, QC H3C 2PC
2nd, 3rd and 4th floor:
Leasable area: 16,000 ft2 (full floor)
5th floor:
Leasable area:
Suite 510: 2324 ft2 | Suite 520: 4749 ft2
6th, 7th and 8th floor:
Leasable area: 14,000 ft2 (full floor)
Net rent: $25 ft² annually | Additional rent: $15 ft²
Electricity: Metered at tenant's expense
- Ceiling height: 12’2”
- Floor loading: 100 lb/SF live load
- Internal stairs ready: knock-out panels on every floor
- Private outdoor space: loggias/balconies for office suites
- HVAC: fully customizable with individual tenant control
- Operable windows throughout
- Power: double typical downtown electrical capacity
- Rooftop: terraces + basketball and pickleball court
- Fitness: premium gym with locker rooms + showers
- Tenant lounge: penthouse lounge + dedicated Zen Room
- EV charging: on every parking level
- Cyclist amenities: showers + secure bike racks
- Elevators: 4 large high-speed elevators
- Parking: 3-level garage with 10’ ceilings
- Atrium: 40’ ground-floor atrium with natural daylight

© 2026 Bullion Properties. Site by Bluedogz Design
Terms & Conditions
Privacy Policy












